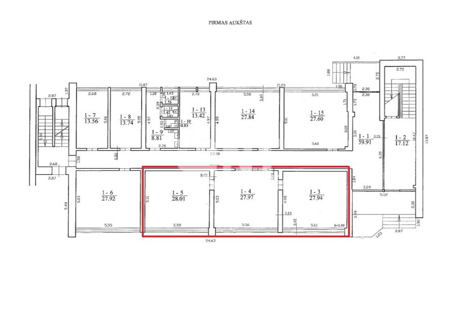
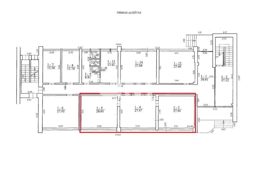
For rent well equipped commercial premises in a new building near the intersection of Taika and Jūrininkai avenue in Klaipėda.
On the first floor, all premises have separate entrances, equipped with utility rooms. Suitable for trade, service sphere, salons, office. The areas of the premises for rent on the first floor are 120 m2, 146 m2, 170 m2, 227 m2.
On the second floor, there are modern premises for offices. Areas of rented premises on the second floor are from 100 m2 to 900 m2.
C