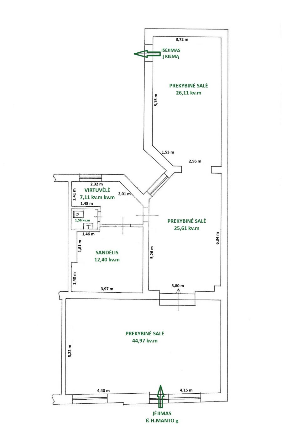
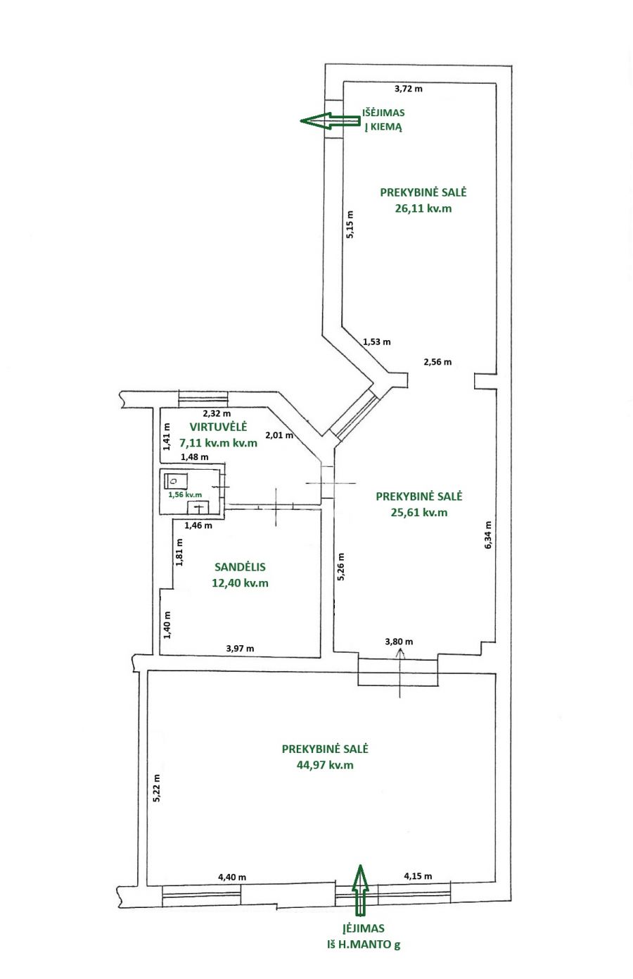
H. Manto g. Klaipėda

Type Commercial, office space
Action For rent
Purpose
  • Office
  • Trade
Area m2 117.76
Floor 1
No. of floors 3
Building type Brick house
Heating system
  • Central
Price €/m2 11.89
Advert ID 4193
Price1 400 €

 

Additional information about advert :
Year: 1903
Equipment: fully equipped
Features: Private entrance; Paved road

Panašūs objektai: